Wohnen am Schaaletal in 19246 Kogel

Grundstück(e) in 19246 Kogel
Grundstücke in Kogel - Informieren Sie sich zum Hausbau in Kogel!
Die Hochbaureife wird voraussichtlich Ende des Jahres 2021 erreicht.
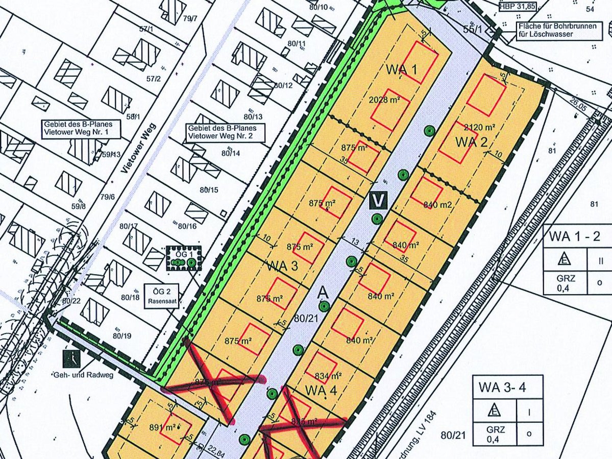
Auf den insgesamt 17 Grundstücken in Kogel, mit einer Größe von 806 m² - 1.130 m², können folgende Town & Country Häuser gebaut werden.
- Bungalows
- Einfamilienhäuser
- Doppelhäuser
LAGEBESCHREIBUNG:
Grundstück(e) in 19246 Kogel
Kogel liegt etwa 6,5 Kilometer südöstlich von Zarrentin am Schaalsee und des Biosphärenreservats Schaalsee.
| Kaufpreis: | auf Anfrage |
| Grundstücksfläche: | 806,00m² |
| * zzgl. Nebenkosten (z.B. Grunderwerbsteuer, Notargebühren) | |
Die Bundesautobahn 24 quert das Gemeindegebiet und ist über die Anschlussstelle Zarrentin befahrbar. Die Schaale fließt in südlicher Richtung zur Sude.
- Schwerin 23 km
- Wittenburg 17 km
- Pampow 40 km
- Wismar 69 km
- Hamburg 68 km
Eine Kindertagesstätte ist im Ort vorhanden.
Nutzen Sie jetzt noch die Gelegenheit und sichern Sie sich ein Baugrundstück in dieser einmaligen Wohnlage in Kogel.
SONSTIGES:
Was kostet ein Haus mit Grundstück in Kogel?
Gerne stehen wir Ihnen bei dieser Frage zur Seite. Rufen Sie uns einfach an.
Gemeinsam ermitteln Sie mit unseren Verkaufsberatern Ihr eigenes Gesamtkonzept mit Ihrem Wunschhaus, Grundstück und allen dazugehörigen Baunebenkosten.
Interesse geweckt? Rufen Sie gleich an!



